Fewo Oase Ruhrtalblick
Preview only — see all hotel photos
See all 19 photos 1 /
19
Best options for your travel dates
Vis hotel på kort
Fewo Oase Ruhrtalblick
Beliggende 10 minutters kørsel til Hennesee, tilbyder Fewo Oase Ruhrtalblick ferielejlighed indkvartering med Wi Fi i offentlige områder.
Denne ferielejlighed ligger inden for 25 minutters gang fra Bestwig's centrum. Med bil er der 15 minutters køretur til Fort Fun Forlystelsespark. Gæster kan prøve Duitse gerechten måltider i gastropub Düring Imbiss placeret tæt på ferielejlighed. Det tager en 20-minutters køretur for at se Erzbergbaumuseum und Besucherbergwerk.
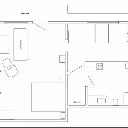
Denne indkvartering indeholder også et fuldt udstyret køkken. Paderborn Lippstadt lufthavn ligger på 45 km afstand fra stedet.
Mere +
Mindre -
Vent venligst, vi tjekker tilgængelige værelser til dig.
Vi søger hoteller
Faciliteter
Hovedfunktioner
- Gratis WiFi
- Aktiviteter
- Shuttle-service
Faciliteter
General:
- Rygning forbudt på alle fælles- og privatområder
- Gratis Wi-Fi på offentlige områder
- Parkering
- Allergivenlige værelser
Sport og Fritid:
- Have
- Grillfaciliteter
- Vandreture
- Cykling
Services:
- Transfer-service
Bekvemmeligheder på værelset:
- Terrasse
Politik
Indtjekning: fra 16:00 indtil 23:59
Udtjekning: indtil 11:00